产品展示
明杆闸阀又叫旋转杆闸阀 ( 亦叫明杆楔式闸阀)。阀杆螺母设在闸板上,手轮转动带动阀杆转动 , 而使闸板提升,通常在阀杆的底端有梯形螺纹,通过阀门底端的螺纹以及阀瓣上的导槽,将旋转运动变为直线运动,即将操作转矩变为操作推力。开启阀门时,当闸板提升高度等于阀门通径的1:1倍时,流体的通道完全畅通,但在运行时,此位置是无法监视的。实际使用时,是以阀杆的顶点作为标志,即开不动的位置,作为它的全开位置。为考虑温度变化出现锁死现象, 通常在开到顶点位置上,再倒回 1/2~1圈,作为全开阀门的位置。因此,阀门的全开位置,按闸板的位置(即行程)来确定。
产品详情
产品图纸



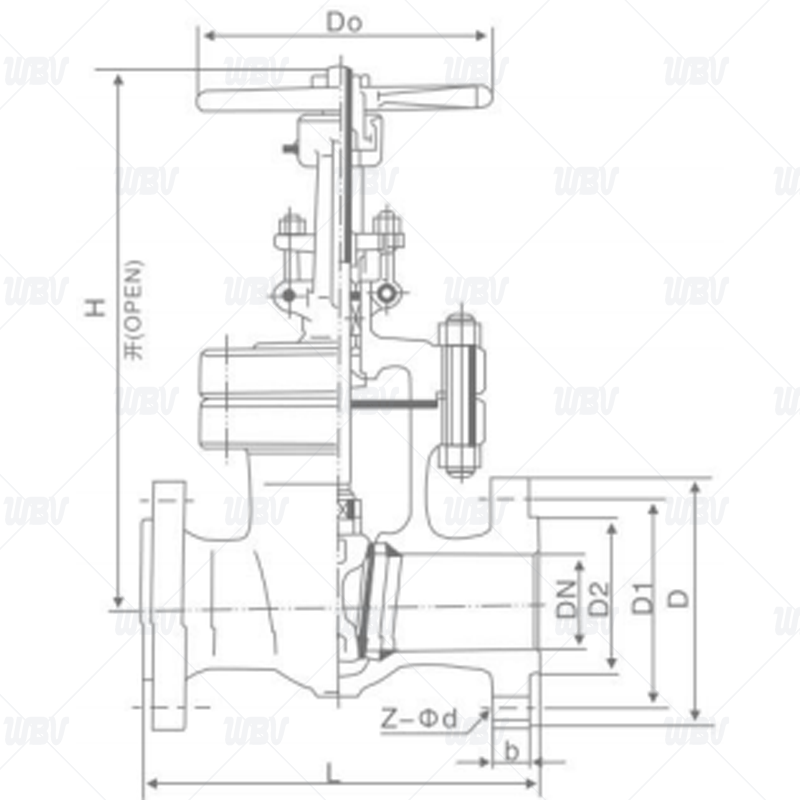
产品尺寸
| NPS | DN | L | D | D1 | D2 | b | z-Фd | H | D0 |
| 1/2“ | 15 | 140 | 95 | 66.5 | 35 | 15 | 4-Ф15 | 190 | 120 |
| 3/4” | 20 | 152 | 117 | 82.5 | 43 | 16 | 4-Ф19 | 200 | 120 |
| 1“ | 25 | 165 | 124 | 89 | 51 | 18 | 4-Ф19 | 225 | 140 |
| 1 1/4“ | 32 | 178 | 133 | 98.5 | 64 | 19 | 4-Ф19 | 255 | 160 |
| 1 1/2” | 40 | 190 | 156 | 114.3 | 73 | 21 | 4-Ф22 | 320 | 180 |
| 2“ | 50 | 216 | 165 | 127 | 92 | 23 | 8-Ф19 | 360 | 220 |
| 2 1/2” | 65 | 241 | 190.5 | 149.4 | 104.7 | 26 | 8-Ф22 | 400 | 240 |
| 3“ | 80 | 283 | 210 | 168.2 | 127 | 29 | 8-Ф22 | 455 | 280 |
| 4” | 100 | 305 | 254 | 200.2 | 157 | 32 | 8-Ф22 | 500 | 300 |
| 5“ | 125 | 381 | 279 | 235 | 185.7 | 35 | 8-Ф22 | 555 | 320 |
| 6” | 150 | 403 | 318 | 270 | 216 | 37 | 12-Ф22 | 650 | 350 |
| 8“ | 200 | 419 | 381 | 330 | 270 | 42 | 12-Ф25 | 900 | 450 |
| 10” | 250 | 459 | 445 | 387.5 | 324 | 48 | 16-Ф29 | 970 | 500 |
| 12“ | 300 | 502 | 521 | 451 | 381 | 51 | 16-Ф32 | 1110 | 550 |
| 14” | 350 | 762 | 584 | 514.5 | 413 | 54 | 20-Ф32 | 1220 | 600 |
| 16” | 400 | 838 | 648 | 571.5 | 470 | 58 | 20-Ф35 | 1430 | 650 |
| 18“ | 450 | 914 | 711 | 628.7 | 533.4 | 61 | 24-Ф35 | 1510 | 700 |
| 20” | 500 | 991 | 775 | 685.8 | 584 | 64 | 24-Ф35 | 1680 | 750 |
| 24“ | 600 | 1143 | 914.4 | 812.8 | 692 | 70 | 24-Ф41 | 1820 | 800 |
| 26” | 650 | 1245 | 972 | 876 | 749.5 | 80 | 24-Ф45 | 1920 | 850 |
| 28“ | 700 | 1345 | 1035 | 939.8 | 800 | 86 | 28-Ф45 | 2100 | 900 |
技术资料
1.设计和制造按ANSI 16.34 API600的规定
2.结构长度按ANSI B16.10的规定
3.法兰尺寸按ANSI B16.5的规定
4.压力温度额定值按ANSI B16.34的规定
5.测试按API598的规定
产品零件表
| 名称 | 材质 | ||||||||
| 阀体 | A216 WCB | A352 LCB | A217WC6 | A217 WC9 | A217 CS | A351 CF8 | A351 CF8M | A351 CF3 | A351 CF3M |
| 阀盖 | |||||||||
| 阀板 | |||||||||
| 阀杆 | A182 F6 | A182 F304 | A182 F316 | A182 F304L | A182 F316L | ||||
| 阀杆螺母 | ZcuAl10Fe3 Bronze | ||||||||
| 手轮 | KTH350-10 | ||||||||
| 螺柱 | A193-B7 A320-L7 A193-B8 | ||||||||
| 螺母 | A194-2H A194-7 A194-8 | ||||||||
上一条:美标不锈钢明杆楔式闸阀 ANSI stainless steel RS wedge gate valve Z41H-300LB
下一条:美标不锈钢明杆楔式闸阀 ANSI stainless steel RS wedge gate valve Z41H-150LB
相关信息